Projet réalisé à l'école d'architecture de l'Université Laval à Québec
Master 1, semestre 7
Atelier de projet
Enseignant référent : David-Alexandre Côté
Collaboration : Maxime Dulac, Tom Constantinides
Localisation : Haggerston, Londres
Espace non-programmé
Atelier de projet
Enseignant référent : David-Alexandre Côté
Collaboration : Maxime Dulac, Tom Constantinides
Localisation : Haggerston, Londres
Espace non-programmé
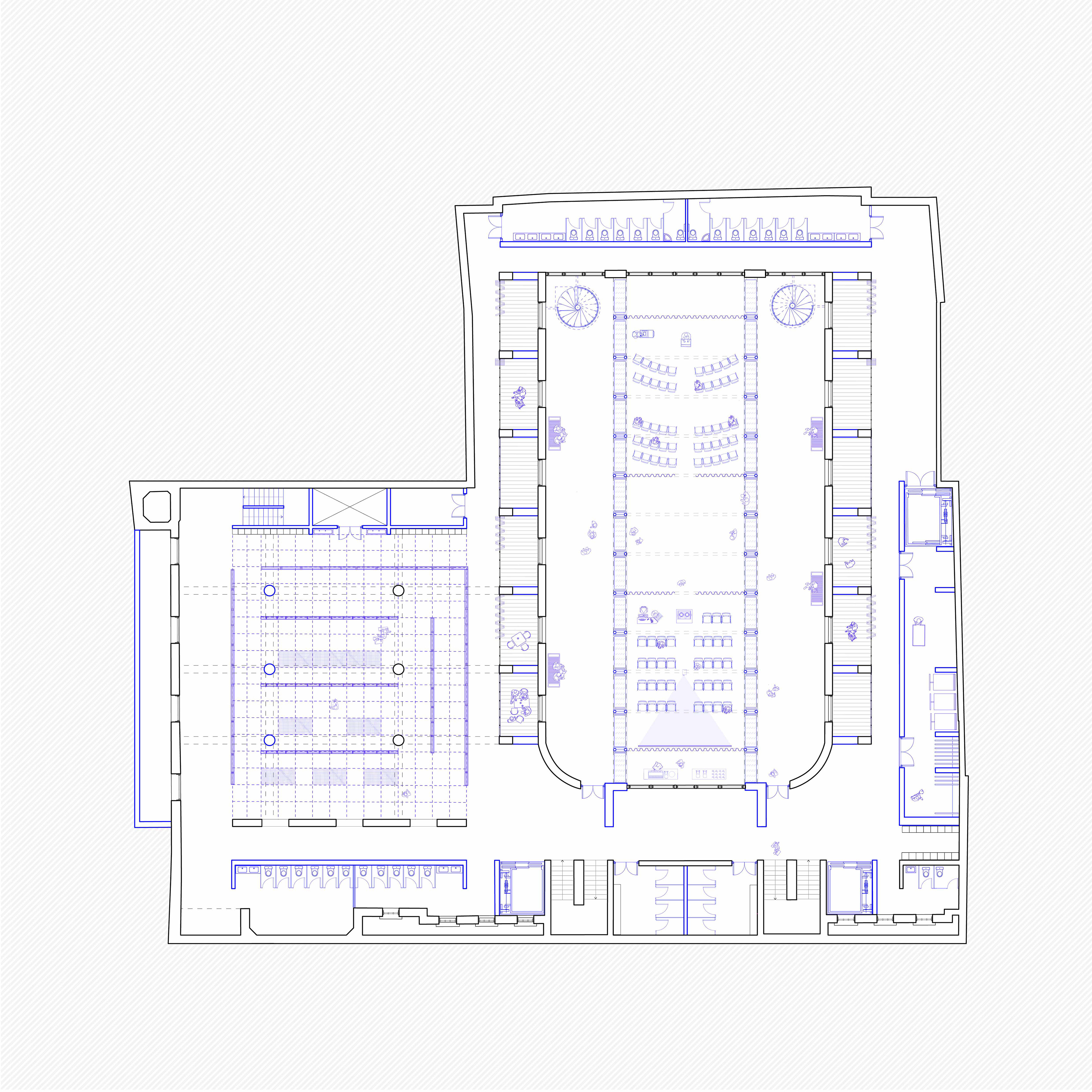
Implanté dans l’ancienne structure des Haggerston Baths, ce projet interroge la place du programme en architecture et propose une alternative ouverte : celle d’un non-programme, pensé comme un support d’usages libres, évolutifs et appropriables. Le bâtiment devient une dalle habitée, un sol continu qui prolonge l’espace public à l’intérieur de l’existant. Aucun usage n’y est prescrit, aucun mobilier n’est figé. Tout y est temporaire, modulable, réversible. La mémoire de l’ancien bassin subsiste sous la forme d’un passage, d’une surface commune où les corps circulent, s’arrêtent, se rencontrent, anonymement.
L’architecture agit ici comme une infrastructure hospitalière : elle offre une structure, des seuils, des fragments matériels (planches, cordes, tissus, éléments récupérés) permettant à chacun de construire ses propres situations, s’asseoir, s’abriter, partager, se retirer. Le bien-être ne résulte pas d’un usage imposé, mais de la capacité d’appropriation laissée aux usagers.
Au fil de la déambulation, les espaces changent d’échelle. Du plan ouvert et public, on glisse vers des zones plus étroites, plus calmes, plus intimes. Le projet explore ainsi la relation entre corps, matière et mouvement, et montre comment l’intime peut émerger au cœur même de l’espace collectif.
Lorsque le lieu se vide, les structures se démontent. Le sol retrouve son calme, tout en conservant la trace des passages et des gestes. L’architecture devient alors mémoire : celle d’usages ordinaires, de moments partagés, et d’une liberté spatiale retrouvée.
hospitalité — continuité — seuil — modularité — appropriation — intimité — usage
"Le sol s’étend, laissant apercevoir un passage dans ce bâtiment. Un plan nu, sans
mobilier, indique une direction. Rien n’y est prévu, rien n’y est interdit, tout y est
temporaire. Au sein de ce bâtiment existe une mémoire d’un ancien bassin où se
dessine une dalle, un passage, où les gens viennent publiquement et anonymement.
Le non-programme commence ici, par cette ouverture totale au reste de la ville,
cette porosité laissant les individus respirer. Au-delà de cette dalle suspendue se
trouvent des espaces, plus ou moins intimes, prônant la structure existante comme
appui aux mouvements. On y trouve des fragments, des planches, des cordes et
tissus, des restes de chantiers et de la lumière. Chacun y entre et agit. On assemble,
on noue, on cale. Une assise apparaît, une table, un abri léger. Le mobilier ne se
dessine pas mais il se construit au rythme des besoins. C’est ainsi qu’apparaît le
bien-être, en répondant aux besoins de chacun.
En déambulant dans l’espace, le lieu change d’échelle, l’espace devient étroit, plus
calme et plus intime. L’espace est mouvant, il est le résultat de la relation entre le
corps et la matière.
Le bien-être naît de ces espaces appropriables, de toutes les possibilités sans
contraintes, de cette liberté dans la diversité. Quand le ciel s’assombrit, les structures
se démontent, se cristallisent. Le sol retrouve son calme, mais garde la mémoire des
passages, la trace de ceux qui, à un instant, ont fait trace par leurs gestes, et se sont
sentis reposés, par leurs espaces appropriés."
mobilier, indique une direction. Rien n’y est prévu, rien n’y est interdit, tout y est
temporaire. Au sein de ce bâtiment existe une mémoire d’un ancien bassin où se
dessine une dalle, un passage, où les gens viennent publiquement et anonymement.
Le non-programme commence ici, par cette ouverture totale au reste de la ville,
cette porosité laissant les individus respirer. Au-delà de cette dalle suspendue se
trouvent des espaces, plus ou moins intimes, prônant la structure existante comme
appui aux mouvements. On y trouve des fragments, des planches, des cordes et
tissus, des restes de chantiers et de la lumière. Chacun y entre et agit. On assemble,
on noue, on cale. Une assise apparaît, une table, un abri léger. Le mobilier ne se
dessine pas mais il se construit au rythme des besoins. C’est ainsi qu’apparaît le
bien-être, en répondant aux besoins de chacun.
En déambulant dans l’espace, le lieu change d’échelle, l’espace devient étroit, plus
calme et plus intime. L’espace est mouvant, il est le résultat de la relation entre le
corps et la matière.
Le bien-être naît de ces espaces appropriables, de toutes les possibilités sans
contraintes, de cette liberté dans la diversité. Quand le ciel s’assombrit, les structures
se démontent, se cristallisent. Le sol retrouve son calme, mais garde la mémoire des
passages, la trace de ceux qui, à un instant, ont fait trace par leurs gestes, et se sont
sentis reposés, par leurs espaces appropriés."